top of page
Executive Drawings, 3d modeling | Αρχιτεκτονικός σχεδιασμός, Ανακαίνιση ξενοδοχείου, 3d modeling
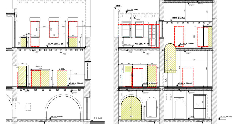
Venetian building restoration in charge of D.Mpoukouras & Partners, in Chania
Crete, 2008
Venetian building restoration in Chania and conversion into a hotel.
In collaboration with the architectural office of Athens, D.Mpoukouras & Partners, we participated in the architectural design and undertook part of the 3d modeling. Preliminary studies and quantity calculations were made in order to document the number of necessary construction work.
bottom of page






